Appartement Type B

Appartement Type B

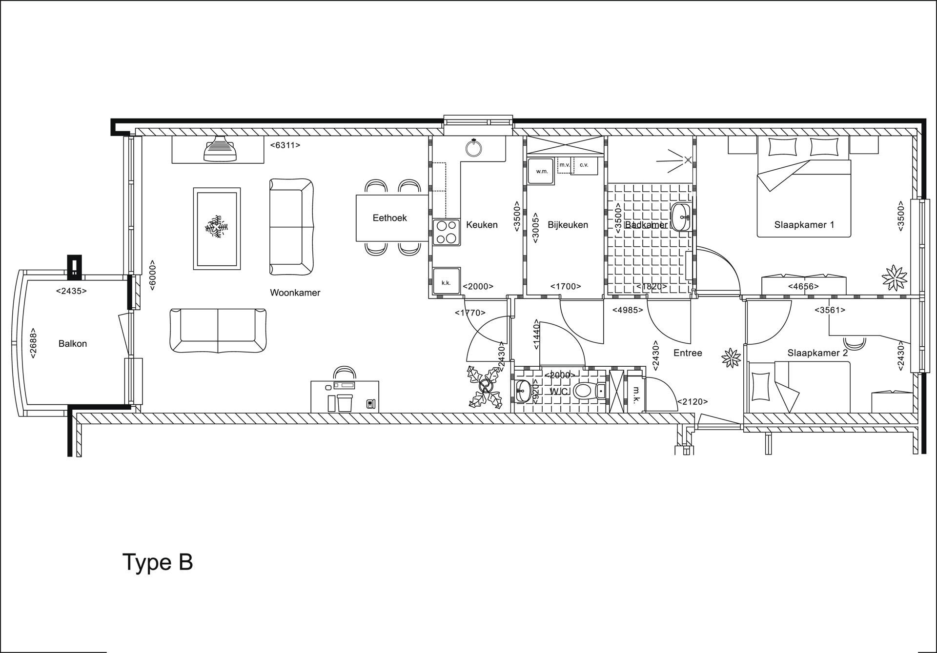
De appartementen van het type B bevinden zich aan het einde van de galerij. De woonkamer van 42 vierkante meter is verbonden aan de dichte keuken. Daarnaast heeft de woning een ruime bijkeuken en een gerenoveerde  ruime badkamer met grote inloopdouche, een wastafelmeubel en een design radiator. Het ruime toilet beschikt over een zwevend toilet met een fonteinmeubel. De twee slaapkamers bevinden zich aan de achterzijde van het gebouw.

Specificaties:

  • 100 m²
  • Vanaf € 1.250 p/m excl. servicekosten en parkeerplaats

Heeft u vragen of opmerkingen?