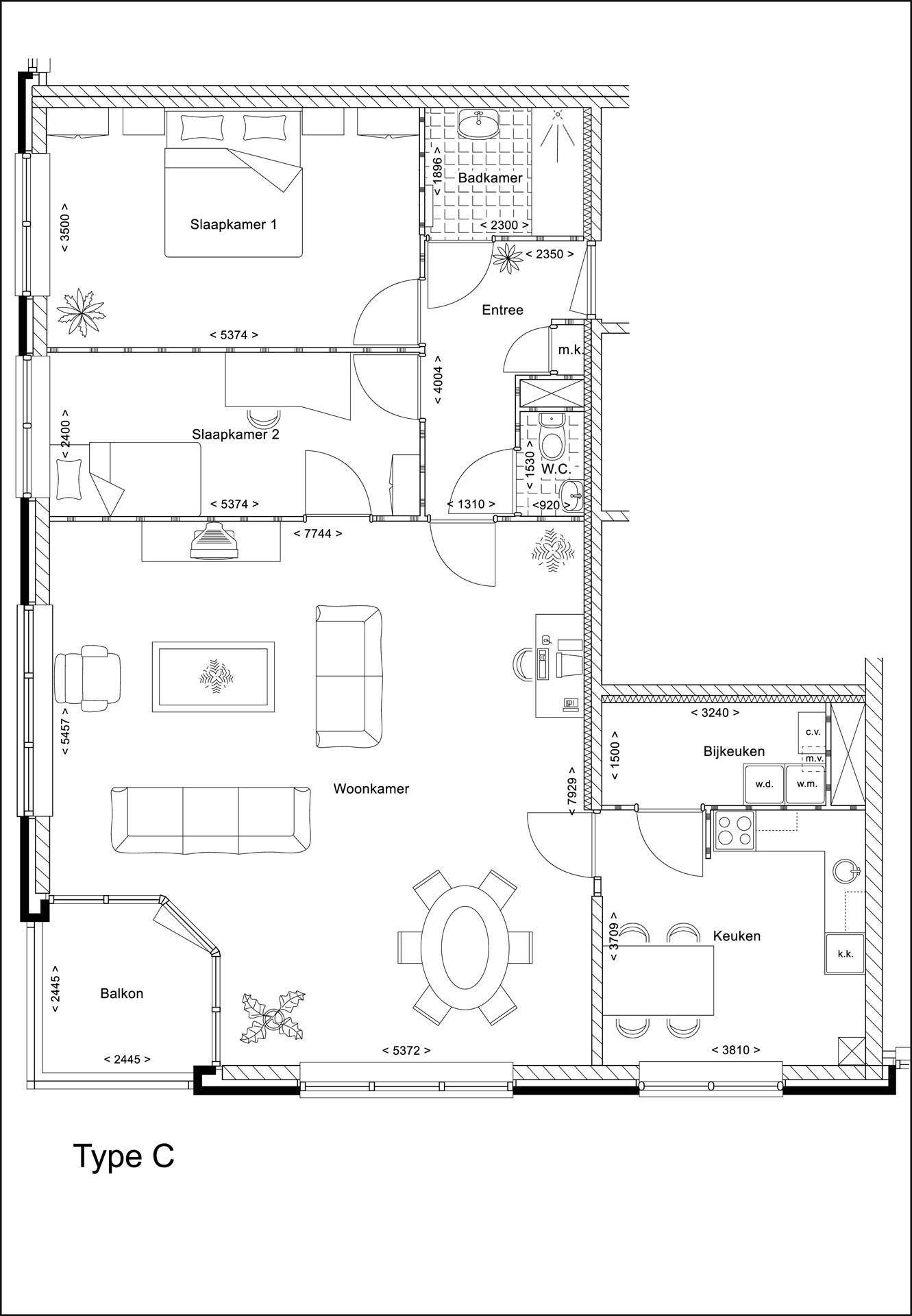
Appartement Type C
Het hoekappartement dat valt onder type C heeft een royale oppervlakte van circa 135 vierkante meter. De woning heeft een mooi uitzicht over de markt naar de Oude Kerk. De entree geeft toegang tot de twee slaapkamers en de royale woonkamer van wel 50 vierkante meter. De bijkeuken en gesloten keuken grenzen direct aan de woonkamer. De geheel gerenoveerde badkamer is voorzien van een ruime inloopdouche met een wastafelmeubel en een design radiator. Dit appartement heeft een inpandig balkon waar vanaf u het levendige centrum van Ede kunt aanschouwen.
Specificaties:
- 135 m²
- Vanaf € 1.500 p/m excl. servicekosten en parkeerplaats