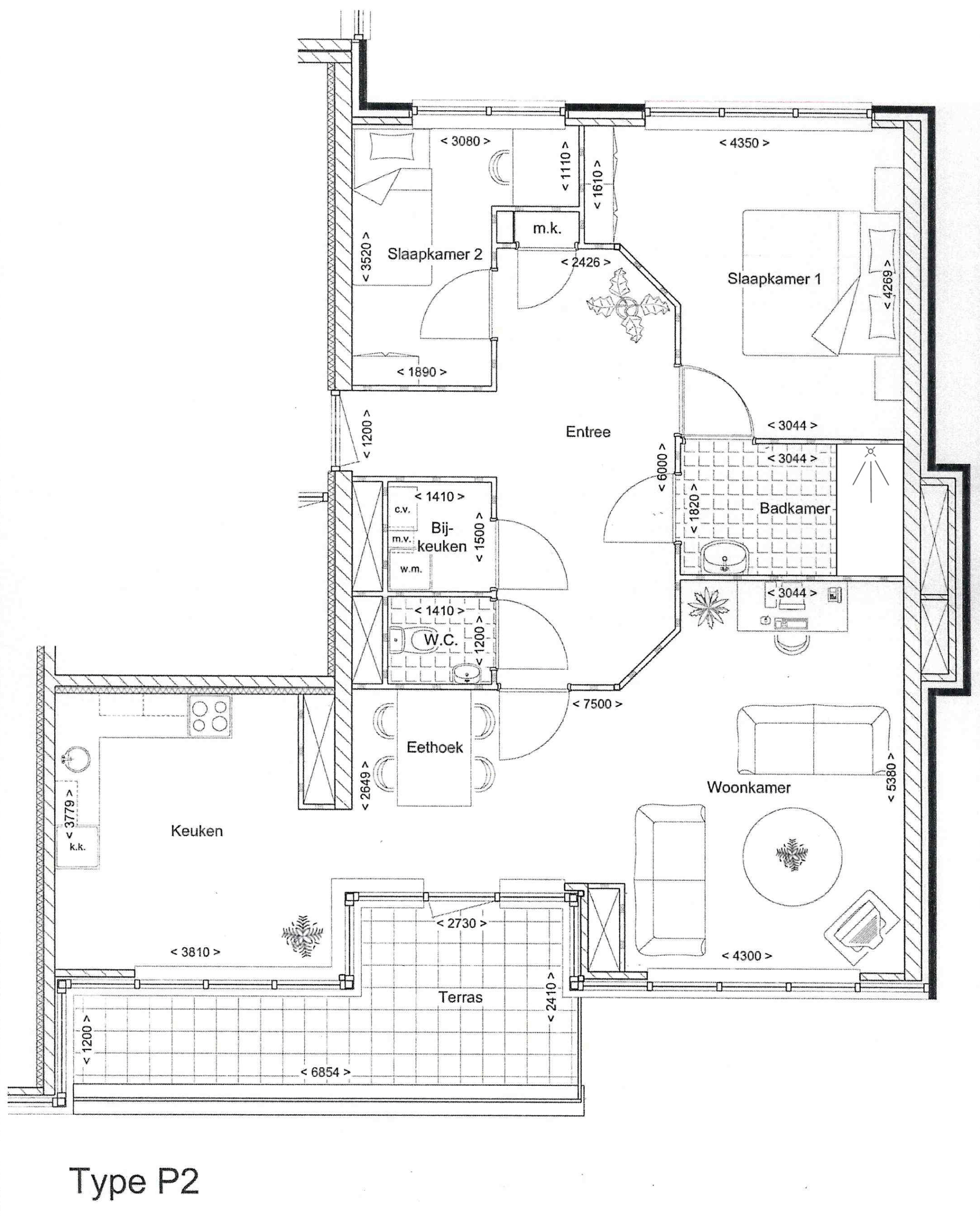
Appartement Type P2
Op de vijfde verdieping van het prachtige complex is het eveneens prachtige penthouse te vinden. Deze woning beslaat wel 100 vierkante meter. Het schitterende uitzicht biedt een kijkje over de markt en het centrum van Ede. De woonkamer van 32 vierkante meter krijgt veel lichtinval door de vele raampartijen. Het terras beslaat wel 12 vierkante meter en deze is via de woonkamer te bereiken. Het terras ligt op het zuiden waardoor u volop van de zon kunt genieten. Het penthouse heeft twee slaapkamers. De grootste is ruim 13 vierkante meter groot met aansluitend de zeer royale badkamer. In de bijkeuken is meer dan genoeg ruimte voor een wasmachine en -droger naast de CV-installatie.
Specificaties:
- 100 m²
- € 1.250,-- p/m excl. servicekosten en parkeerplaats